제품소개

조립라인

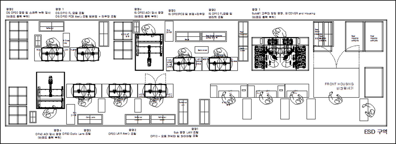
각종조립라인

  • T사 : RCL 조립라인

  • D사(우즈벡) : BUMPER 조립라인

  • D사(우즈벡) : D_trim 조립라인

  • S사 : LPL 조립 자동화라인

  • 조립라인(G_box 및 C_PAD)

  • 조립라인 작업 table

기타설비

  • S사 : Lamp 에어브로잉기

  • S사 : Lamp 랩포장설비

  • S사 : Hot Melt 도포기

  • (주)동양프라웰

    대표자 : 류관희, 문홍국
    사업자 등록번호 : 504-86-17818
    주소 : 대구광역시 달서구 성서공단북로 285 (갈산동)
    Copyright 2025. 동양프라웰 All rights reserved.

  • TEL

    053-353-7022
    053-353-7033

    FAX

    053-353-7044